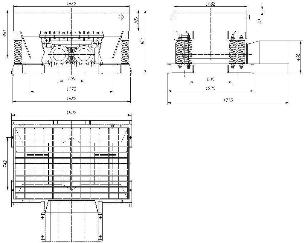
KNOCKOUT GRID KW

APPLICATION
Knockout grids are designed for knocking out casting from moulds.
PRINCIPLE OF OPERATION
The destruction of moulds and the preliminary cleaning of the castings from the mould’s sand take place due to their dynamic collisions with the vibrating grate supported on elastic supports. The grate vibration is generated by an internal vibrator set installed in the grate body and driven by an asynchronous motor by means of a high-flexible elastic clutch.
TECHNICAL DATA
| Parametr | Unit | KW 2,5 1016 | KW 2,5 1220 | KW 4 2020 | KW 5 2030 | KW 6 1530 | KW 6 1625 | KW 10 2025 | KW20 2540 | ||
| Load capacity | kg | 2500 | 2500 | 4000 | 5000 | 6000 | 6000 | 10000 | 20000 | ||
| Useful width of table | mm | 1000 | 1200 | 2000 | 2000 | 1500 | 1600 | 2000 | 2500 | ||
| Useful length of table | mm | 1600 | 2000 | 2000 | 3000 | 3000 | 2500 | 2500 | 4000 | ||
| Installed power | kW | 2x4,0 | 2x4,0 | 2x7,5 | 2x11 | 2x11,0 | 2x7,5 | 2x15,0 | 2x30,0 | ||
| Rotational engine speed | obr./mi. | 970 | |||||||||
| Supply voltage | V | 4x400V; 50Hz; suplly system TN-S | |||||||||
| Frequency | Hz | 50 | |||||||||
| Weight | kg | 2065 | 2800 | 4000 | 6510 | 5400 | 5200 | 6700 | 13700 | ||
In the knockout grids produced by our company we use a new type of construction of vibrating mechanism consisting of two so-called " vibrators without latch"" installed in the body of the grid. "The vibrators without latch" made it possible to eliminate the elements which often break (bumpers, triggers -in the previously produced mechanisms)
Only bearings must be serviced and its replacement is very simple because of the use replaceable bearing basket. Vibration frequency is reduced to 16 Hz. The reduction in frequency increased bearing life and increased the amplitude of the vibrations.
Increasing of the amplitude considerably improved the efficiency of knocking out and allowed to reduce the total process time. The grids are equipped with an electric engine braking system which allows quickly pass through the resonance vibrations. The system eliminates the very dangerous vibrations of high amplitude.
There is a possibility to regulate the exciting force vibrations. Each user can determine, in the specified range, the size of exciting force, so that the knock out process proceeds optimally for his needs. New mounting of the so called springs without screw-in, eliminated the stiff embedding springs on the screw plug, thanks to which springs replacement time is reduced and the cause of the cracks was eliminated. This solution allowed to obtain an easy start and braking of the grids

