Double-disk grinders SZD

APPLICATION
Double-disk grinders are designed for finishing operations of castings and forgings, by removing grinding traps and other irregularities.
Applying grinding wheels of appropriate kind, the grinder can be used for iron castings, steel castings, or non-ferrous metals.
PRINCIPLE OF OPERATION
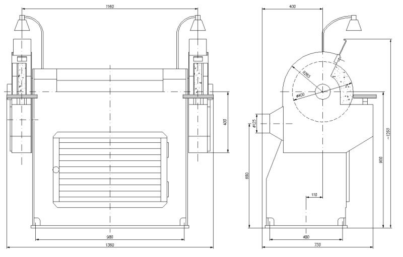
Two grinding wheels mounted on the ends of the shafts are driven by single motor (with two ends of the shaft), installed inside the grinder body through separate belt transmission. The grinding wheels are guarded with shields equipped with replaceable and adjustable props to support the castings held in hands.
TECHNICAL DATA
| Parametr | Unit | SZD-400 |
| Number of work-stands | szt. | 2 |
| Grinding wheel outer dia. | mm | 400 |
| Grinding wheel inside dia. | mm | 127 |
| Grinding wheel width | mm | 50 |
| Grinding wheel peripherial speed | m/s | max 50 |
| Spindle revolutions | 1/min | 2391/3064 |
| Power installed | kW | 11 |
| Motor revolutions | 1/min | 2920 |
| Supply voltage | V; Hz | 3 X 400/230; 50 |
| Extraction pipeline dia. | mm | 125 |
| Extraction air volume | m3/h | 2000 |
| Negative pressure | Pa | 20 |
| Weight | kg | 600 |