Single-disk floor-stand grinders SZJ

APPLICATION
The grinder is designed for rough grinding of castings, forgings, etc. from which traps, residues of trapping and other surface irregularities are removed. You can process cast iron, steel objects and non-ferrous metal objects on the grinder. The grinder uses only the cylindrical surface of the grinding wheel.
PRINCIPLE OF OPERATION
The grinding object (eg casting, forging) is set on a table with adjustable height and horizontal movement. The pressure of the item to the grinding wheel is manual. The maximum pressure force should not exceed 200 N. For each type of material from which the object is made, choose a wheel individually with a specific hardness, grain size, etc.
TECHNICAL DATA
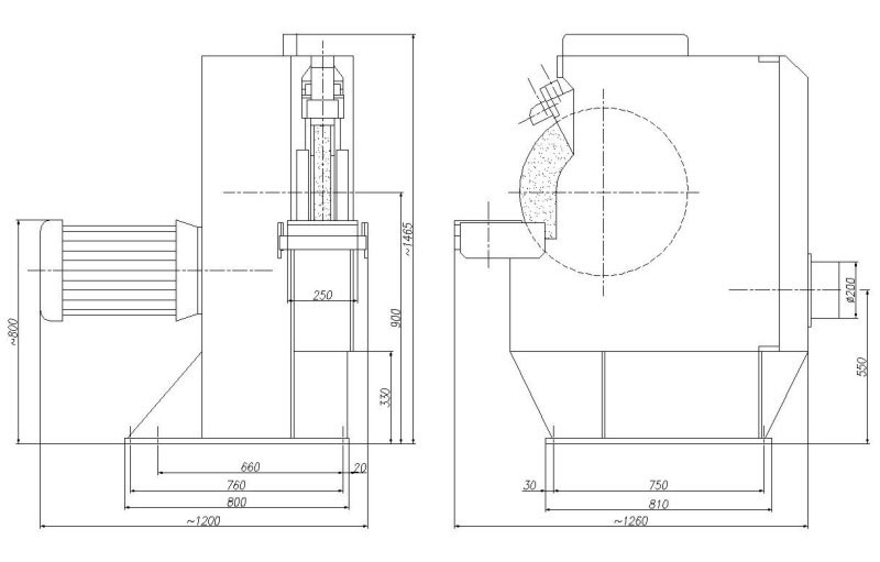
| Parameter | Unit | SZJ-660 SZJ-P-660 | |
| Wheel peripherial speed max | m/s | 60 | |
| Wheel dimensions: | outer dia. | mm | 600 |
| thickness | mm | 60 | |
| bore dia. | mm | 203 | |
| Workpiece/wheel contact force max. | N | 200 | |
| Two-speed electric motor – power | kW | 8,5/13 | |
| Two-speed electric motor – revolutions | obr/min | 985/1470 | |
| Supply voltage | V | 3x400/230 | |
| Power supply frequency | Hz | 50 | |
| Dust extraction line dia. | Mm | 200 | |
| Noise intensity level when working | db (w) | 89 | |
| Weight - grinder without feeder | kg | 1050 | |
| Weight-grinder with feeder | kg | 1124 | |